
Interior and exterior design
Exotische Villa @2026
Een warme, moderne villa waar luxe, comfort en duurzaamheid samenkomen. De woning wordt gerenoveerd met respect voor de bestaande architectuur, BENG, energiezuinig en met uitstekende geluidsisolatie. Binnen en buiten vloeien in elkaar over door de grote kozijnen, erkers en een ruim terras. De open leefruimtes nodigen uit tot samenzijn vormen de basis van een gezellige woning maar bieden de mogelijkheid tot terugtrekken.



Contemporary Villa @2025
Renovatie tot een landelijk moderne villa. Het interieur is hotel chique. Op drie manieren ingetekend in de werktekeningen, materialisatie, kleur en maatvoering. Belangrijk voor het voorkomen van fouten in de bouw.
• Aanzichten van het kantoor, buitenkeuken en slaapkamer
• Vloerplannen en plattegronden
• Materialisatie en maatvoering

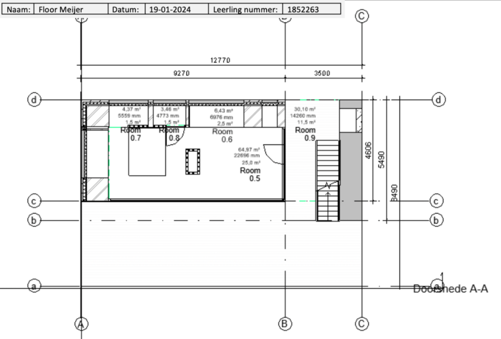
Tiny House @2024
Een Tiny House kan ook luxe en comfortabel zijn. Het ontwerp komt als uit een heuvel tevoorschijn. De achter- en zijwand vormen een massieve muur afgewerkt als rotswand waarin de functies zijn verwerkt waardoor de keuken, kastruimte en techniek verdwijnen, alsof ze deel uitmaken van de rotswand. De glazen voorgevel opent de woning naar buiten. Elke ruimte, van woonkamer tot slaapkamer en badkamer, loopt in elkaar over. Buiten zijn meerdere plekken om te zitten want in dit Tiny House is de buitenlucht het grootste vertrek.
• Grote open ruimtes in verbinding met buiten
• Maximale oppervlakte van 38 m2
• Rc waarden in de gehele woning minimaal 5,0 m2K/W
• Maximaal een woonlaag en minimaal 3 kamers
• Duurzaam materiaalgebruik
• Duurzame technieken: Warmtepomp, zonnepanelen, vloerverwarming, Elektrisch koken



Twee concept villa’s


Landelijk moderne villa
Griekse villa

NL.H2O projecten